A challenge to window fabricators in Australia today is that building plans often do not nominate the relevant wind loads for a building. This has important implications for choosing windows and doors that stand up to the diverse range of conditions found in Australia for a diverse range of buildings. It is the purchaser’s responsibility to provide the window manufacturer with the correct window rating or design wind pressures. The lack of this information should result in window fabricators insisting that the builder or architect provide these values but often in our industry they “guesstimate” what the wind loads might be. The potential result of this non-compliance with the building code includes the failure of the strength of window frames, the failure of glass under wind pressure and is a cause of leaking buildings.
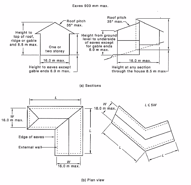
Thank you for reading this post, don't forget to subscribe!There are two Australian Standards that are used to determine wind loads for a building: AS 1170.2 Structural Design Actions and AS 4055 Wind Loads for Housing. As its name suggests AS 4055 may only be used to determine wind loads for “housing” which has a specific meaning under the code – only building classes 1 & 10 (a house and a garage/carport) within specific geometric limits may use AS 4055: all other building classes 2 through 9 must use AS 1170.2.

National Construction Code

AS4055-2006 – Wind loads for housing
AS 4055 sets out 10 classifications of wind loads which can be used to determine the correct window and door selection:

Anyone can use AS 4055 but it is best left to suitably qualified engineers who have appropriate insurances to determine the relevant classification for a building as this affects numerous building elements including windows and doors. AS 4055 provides the Ultimate Limit State (ULS) & Serviceability Limit State (SLS) pressures for each classification as follows:

AS2047 – 2014 – Windows and externally glazed doors in buildings
ULS – the structure must not collapse when subjected to the peak design load for which it was designed
SLS – the structure must remain functional for its intended use subject to routine loading and must not cause the occupant discomfort under routine conditions
For building classes 2-9 or houses that fall outside the geometric limits of AS 4055, AS 1170.2 must be used to determine the wind loads. A qualified, practising engineer must be engaged to apply this standard. The engineer will work out the ULS & SLS pressures specific to a building in a particular location.
No matter which standard is used, the window fabricator will use these ULS & SLS values to determine the strength of mullions and meeting styles and the relevant water penetration performance. It is vital that windows and doors are correctly specified in accordance with AS 4055 or AS 1170.2 to prevent non-compliance and the failure of these building elements.
AWS offers CPD presentations to architects interested in learning more about the selection of windows and doors. If you’d like more information, simply get in contact with us at 1300 026 189 and ask for your local specification representative!